凯发K8
English
联系凯发K8
关注我们
搜索
首页
新闻中心
企业动态
行业动态
产品中心
新品推荐
电线电缆专用设备
钢丝绳制造设备
海洋软管/RTP管制造设备
铝合金电缆制造设备
电缆设备配套计划
配件销售
营销效劳
销售网络
效劳支持
订购咨询
在线留言
资料下载
加工能力
加工能力
检测能力
关于凯发K8
凯发K8简介
企业文化
公司历史
关联企业
招标投标
人才招聘
宁静情况
产品中心
Product center
新品推荐
电线电缆专用设备
连铸连轧类
拉制类
导体绞制类
缆芯绞制类
挤制类
压制类
铠装类
屏蔽类
电缆转盘
配套辅机类
电器成套设备
钢丝绳制造设备
钢丝绳拉丝机
钢丝绳捻股合绳机
收盘、放线架、牵引装置
海洋软管/RTP管制造设备
海洋软管制造设备
RTP管制造设备
铝合金电缆制造设备
铝合金杆轧制
铝合金单丝拉制
铝合金导体绞制
铝合金导体退火
铝合金导体绝缘
铝合金电缆成缆
铝合金电缆联锁铠装
电缆设备配套计划
铝合金电缆
钢芯铝绞线
高压电缆
中低压电缆
联系凯发K8
联系电话
0551-62572111
屏蔽类
您目今的位置:
首页
>
产品中心
>
电线电缆专用设备
>
屏蔽类
PRT同心式铜带屏蔽机
用于电缆绝缘层铜带屏蔽。
立即订购
在线留言
技术参数
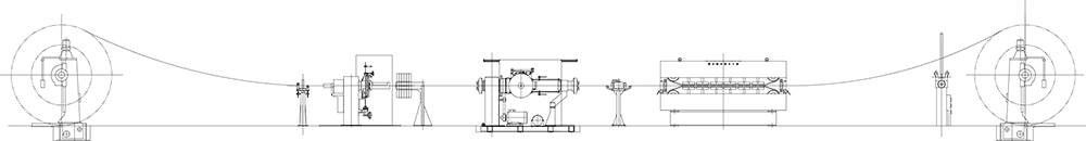
设备简图
案例展示
在线留言
技术参数
带盘规格(mm)
铜带宽度(mm)
张力控制
最高转速(rpm)
生产线长×宽(m)
?600
15~60
机械摩擦
700
26×6
磁滞
1000
设备简图
案例展示
在线留言
*
您的姓名:
*
联系地点:
*
公司名称:
*
联系方法:
*
联系邮箱:
留言内容:
验证码:
点击图片刷新
提交
重置
新闻中心
企业动态
行业动态
产品中心
新品推荐
电线电缆专用设备
钢丝绳制造设备
海洋软管/RTP管制造设备
铝合金电缆制造设备
电缆设备配套计划
配件销售
营销效劳
销售网络
效劳支持
订购咨询
在线留言
资料下载
联系凯发K8
地点:安徽省合肥市经济技术开发区云谷路3399号
电话:86-551-62572111
信箱:smarter@188.com
分享:
友情链接
国资委
中国建材集团
凯盛集团
中国联合装备集团
中国电器工业协会
上海电缆研究所
企业邮箱
联系凯发K8
? 2021
凯发K8
版权所有 【皖ICP备14002329号-1】
捷瑞数字 制作维护
网站地图